Populierenlaan 11

5492 EJ, Sint-Oedenrode

Verkocht

€ 539.000,- k.k.

Kenmerken

Beschrijving

Foto's

Plattegrond(en)

Brochure

Overdracht

Koopprijs
€ 539.000,- k.k.
Status
Verkocht

Bouwvorm

Soort object
Woonhuis
Soort woning
Eengezinswoning
Type woning
Twee onder één kapwoning
Kwaliteit woning
Uitstekend
Bouwjaar
1959
Bouwvorm
Bestaande bouw
Energieklasse
C

Indeling

Woonoppervlakte
120 m2
Perceel oppervlakte
550 m2
Inhoud
435 m3
Aantal kamers
5
Aantal slaapkamers
3
Aantal verdiepingen
3

Buitenruimte

Tuin
Achtertuin
Type
Achtertuin
Oppervlakte
425 m2
Ligging hoofdtuin
Zuidwest
Achterom
Ja
Kwaliteit tuin
Fraai aangelegd

Bergruimte

Schuur / berging
Aangebouwd hout
Totaal aantal
1

Garage en parkeren

Garage
Vrijstaand steen
Aantal garages
1
Garage capaciteit
3
Garage voorzieningen
Elektra, Vliering
Garage oppervlakte
36 m2
Parkeer faciliteiten
Op eigen terrein

Dak

Soort dak
Zadeldak

Voorzieningen

Voorzieningen
Rolluiken
Ja
Schuifpui
Ja

Overig

Permanente bewoning
Ja
Onderhoud binnen
Uitstekend
Onderhoud buiten
Uitstekend
Huidig gebruik
Woonruimte
Huidige bestemming
Woonruimte

Absoluut bijzonder aan deze fijne twee-onder-één-kap woning is de diepe achtertuin van wel 42,5 meter diep en 10 meter breed. Zie je jezelf al heerlijk tuinieren, borrelen met vrienden op het fijne terras of wordt de tuin het domein van de kinderen met veel ruimte om te spelen en ravotten? Of allemaal; de tuin is er groot genoeg voor. Of heb je hobby’s waarvoor de bijna 11 meter lange vrijstaande garage goed kunt gebruiken? Je hebt er in ieder geval genoeg tijd voor, want in deze woning hoeft niet geklust te worden. Spullen inhuizen en genieten maar!

De woning is gelegen in het gezellige en gastvrije dorpje Boskant, nabij Sint-Oedenrode en maakt deel uit van de gemeente Meierijstad. Zowel de A2 als de A50 zijn goed bereikbaar en geeft daarmee een verbinding met de gehele
regio. Boskant beschikt over de belangrijkste voorzieningen als een basisschool, verenigingen en busverbindingen. Vanuit Boskant fiets of wandel je zo de natuur in. En als je de drukte op wilt zoeken dan is het gezellige Sint- Oedenrode vlakbij, en iets verder vind je Eindhoven en Den Bosch als bruisende steden. Het oorspronkelijke bouwjaar van de woning is 1959. Tussen 2015 en 2019 is deze geheel verbouwd en voorzien van nieuwe leidingen, elektra, riolering, vloerisolatie, muurisolatie, dakisolatie, rolluiken en screen. De woning is dan ook perfect onderhouden. De ligging van de woning is uitstekend te noemen. Centraal in het dorp, aan een rustige straat met vrij uitzicht op een plantsoen. Aan de achterkant heeft u geen achterburen. De al riante tuin grenst aan het openbaar groen, dus privacy alom.

De Populierenlaan is een gezellige straat met veel jonge bewoners, veelal met kinderen. Parkeren is geen probleem in deze straat, maar je hebt ook nog je eigen oprit waar zeker 3 auto’s op kunnen staan.

INDELING

Begane grond:

Gezelligheid, sfeer, ruimte, dat is waar je meteen aan denkt als je deze woning binnenloopt. De royale woonkamer is in 2018 bijna 5 meter over de gehele breedte uitgebouwd waardoor er meer dan genoeg ruimte is ontstaan voor een 2e zithoek aan de voorzijde van de woning. Ideaal om je even terug te trekken, als thuiswerk of studieplek, of maak je hier liever een speelruimte voor de kinderen? De keuken vind je in het midden van de woning. Een fraaie keuken, met keukeneiland met spoelbak en bar. De keuken is afgewerkt met een keramiek werkblad en de betegeling is uitgevoerd in een mooi visgraatverband. De keuken is voorzien van veel opbergruimte in de grote lades. Een 5 pits inductiekookplaat, koelkast en vaatwasser maken de keuken compleet. De combi-oven en de stoomoven vindt je in de ruime bijkeuken wat echt een verlengstuk van de keuken is en dan ook direct vanuit de keuken bereikbaar is. Daar vind je ook de wasmachine aansluiting, een spoelbak en nog meer kastruimte. Tegenover de keuken is genoeg ruimte voor het plaatsen van een grote eettafel.

Aan de achterzijde van de woning vind je de grote zit-/tv-hoek. De grote schuifpui geeft een mooie verbinding met de tuin, en geeft ook als je binnen zit een heerlijk ´buiten´gevoel. Om nog extra lichtinval te krijgen is de uitbouw voorzien van een grote lichtstraat. En heel praktisch… de achterdeur bereik je door een achterportaal waar veel ruimte is voor jassen, schoenen etc. en toegang geeft tot de bijkeuken. De hal aan de voorzijde van de woning
geeft toegang tot een royale toiletruimte met hangend closet en urinoir en nog een aparte bergkast met combiketel en de geheel vernieuwde meterkast. Verder bevindt zich hier de trapopgang naar de 1e verdieping. De gehele begane grondvloer is voorzien van een pvc vloer met vloerverwarming. Hierdoor zijn radiatoren niet nodig! De wanden zijn voorzien van stucwerk en de plafonds van schuurwerk.

De tuin heeft een fijn en zonnig terras aansluitend aan de woning. Daarachter bevindt zich een eerste gazon. Halverwege de tuin is een fijn schaduw terras gecreëerd onder een notenboom en Turkse hazelaar. De tuin is verder ingericht met verschillende bomen, hagen, vaste planten en aan de achterzijde nog een 2e royaal gazon. Heerlijk om zelf van de tuin te genieten of als paradijs voor de kinderen om te spelen. De tuin is gedeeltelijk voorzien van een zwarte schutting, achterin is op de erfscheiding een mooie groene beukenhaag geplaatst. De garage van bijna 11 meter lang heeft alle ruimte voor de nodige hobby´s en opbergruimte. De garage heeft zelfs nog een kleine bergzolder. Achter de garage bevindt zich ook nog een houten berging. Bergruimte komt u bij deze woning dus niet tekort!

1e verdieping:

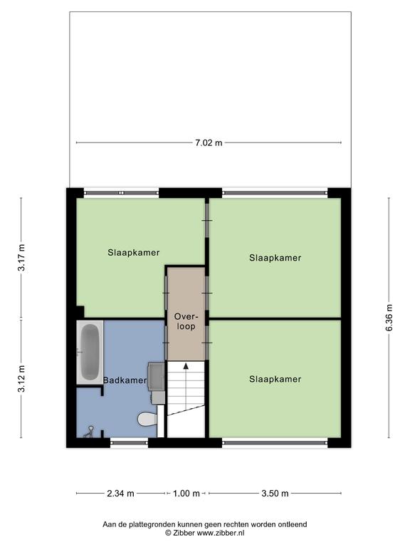
De 1e verdieping is voorzien van een mooie pvc vloer met houtmotief. Op de verdieping bevinden zich 3 slaapkamers. De ouderslaapkamer ligt aan de achterzijde en heeft een grote raampartij en een royale kastenwand met grote schuifdeuren voor al je kleding. Ook is de slaapkamer voorzien van een elektrisch rolluik. Aan de voorzijde
van de woning vind je een 2e royale slaapkamer ook met grote raampartij. De 3e slaapkamer bevindt zich aan de achterzijde en heeft een mooie maat als slaap of studeerkamer. Ook hier een rolluik. De complete badkamer bevindt zich aan de voorzijde. Deze is voorzien van een extra breed wastafelmeubel, bad, inloopdouche, hangend toilet en designradiator. De badkamer is strak uitgevoerd met grote wandtegels en een plavuizen vloer met vloerverwarming.

2e verdieping:

Deze verdieping is momenteel in gebruik als bergzolder en is bereikbaar middels een vlizo-trap.

Uw persoonlijke makelaar

Inge Wijngaarden

0413-472118 [email protected]
Uw persoonlijke makelaar

Marij-Ellen Smits

06-53191515 [email protected]
Uw persoonlijke makelaar

René van de Laar

0413-472118 [email protected]