Kerkendijk 100
5482 KK, Schijndel
€ 549.000,- k.k.
Kenmerken
Beschrijving
Foto's
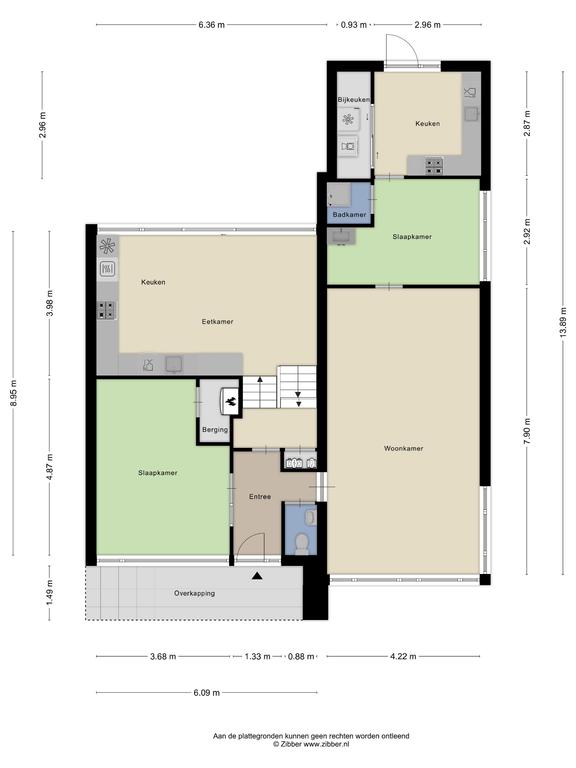
Plattegrond(en)
Brochure
Overdracht
- Koopprijs
- € 549.000,- k.k.
- Status
- Verkocht
Bouwvorm
- Soort object
- Woonhuis
- Soort woning
- Eengezinswoning
- Type woning
- Twee onder één kapwoning
- Kwaliteit woning
- Goed
- Bouwjaar
- 1973
- Bouwvorm
- Bestaande bouw
- Liggingen
- Aan water, Aan park, In woonwijk, Vrij uitzicht
- Energieklasse
- D
Indeling
- Woonoppervlakte
- 194 m2
- Perceel oppervlakte
- 268 m2
- Inhoud
- 766 m3
- Aantal kamers
- 6
- Aantal slaapkamers
- 3
- Aantal verdiepingen
- 5
Buitenruimte
- Tuin
- Achtertuin
- Type
- Achtertuin
- Oppervlakte
- 57 m2
- Ligging hoofdtuin
- Zuidwest
- Achterom
- Ja
- Kwaliteit tuin
- Fraai aangelegd
Bergruimte
- Schuur / berging
- Vrijstaand hout
- Totaal aantal
- 1
- Voorzieningen
- Voorzien van elektra
Garage en parkeren
- Garage
- Geen garage
- Parkeer faciliteiten
- Openbaar parkeren
Dak
- Soort dak
- Lessenaardak
Voorzieningen
- Voorzieningen
- Mechanische ventilatie
- Ja
- Buitenzonwering
- Ja
- Glasvezel kabel
- Ja
Overig
- Permanente bewoning
- Ja
- Onderhoud binnen
- Goed
- Onderhoud buiten
- Goed
- Huidig gebruik
- Woonruimte
- Huidige bestemming
- Woonruimte
Op één van de mooiste plekjes van de woonwijk De Beemd gelegen twéé-onder-één-kap-woning met maar liefst 216 m2 woonoppervlak en een fraai uitzicht over het groene plantsoen en het water. Met mogelijkheid voor dubbele bewoning met 2 keukens en 2 badkamers. Gebruik je de ruimtes liever als werk- of praktijkruimte? Ook dat is mogelijk. Maak een afspraak om deze woning met al haar mogelijkheden van binnen te bekijken. We denken graag met je mee!
De woning is gelegen in de rustige woonwijk De Beemd, op loopafstand van van het centrum van Schijndel met haar vele winkels en terrassen, het Medisch Centrum Schijndel, Cultureel Centrum Het Spectrum, scholen en speelvoorzieningen. Bovendien is het buitengebied van Schijndel dichtbij voor een mooie wandel- of fietstocht door de lommerrijke omgeving van de Meierij. Het dierenparkje De Beemd met speeltuintje ligt om de hoek en ook de basisscholen De Beemd en De Kring met ruime speel en sportgelegenheid liggen op korte afstand.
De woning is van het type splitlevel wat wil zeggen dat de verdiepingsvloeren verspringend zijn, met daartussen een korte trap naar de volgende verdieping. Deze indeling geeft een speels en ruimtelijk effect. De woning heeft een grote uitbouw (70 m2) aan de zijkant die nu gebruikt wordt als 2e woonkamer, slaapkamer met badkamer, bijkeuken met complete inrichting. Deze ruimte is daarmee ook heel geschikt voor dubbele bewoning omdat deze beschikt over de diverse ruimtes voor bv. 1 persoon.
Vanuit de entree tref je aan de linkerzijde een royale slaapkamer van ca 16m2, de kelder (22 m2), een toilet en rechtdoor bereik je na enkele treden de woonkeuken die aan de achterzijde is gelegen. Deze heeft een afmeting van maar liefst 25m2 en is voorzien van een schuifpui naar de tuin. De fraaie keuken in lichte kleurstelling is ruimtelijk ingedeeld en voorzien van alle inbouwapparatuur, zoals stoomoven, vaatwasser, kookplaat, afzuigkap, spoelbak en losse koelkast. De brede raampartij met schuifpui zorgt voor veel lichtinval en een mooi uitzicht op de tuin. Ook heb je vanuit de keuken zicht op de woonkamer die een halve verdieping hoger is gelegen. Zo is de keuken betrokken bij de woonkamer en zorgt dit voor nog meer lichtinval.
De volgende trap opgang geeft toegang tot de woonkamer, voorzien van een gashaard en heeft aan de voorzijde een schuifpui naar het balkon waarbij je heerlijk over het plantsoen uitkijkt. Op het volgende level bevindt zich de badkamer die meer dan royaal te noemen is. Met een dubbele wastafel, bubbelbad en inloopdouche zou je dit je ”eigen wellness” kunnen noemen. Misschien wil je hier nog een sauna bijplaatsen? Er is ruimte genoeg!
Op de bovenste verdieping vind je de grootste slaapkamer van ca 25m2. met een brede raampartij aan de voorzijde. Het schuine dak met de inbouwspots geeft een speels effect aan deze ruime kamer. Je waant je hier in een ware hotelsuite.
De tuin is zonnig gelegen op het zuidwesten en speels ingericht met enkele niveaus en is onderhoudsvrij. De tuin is besloten en geeft veel privacy. Achterin de tuin bevindt zich een houten berging met aparte sauna (4 pers.) en achterom. Aan de zijkant van de woning is er een ruime openbare parkeerplaats voor meerdere auto’s.